Sebuah kediaman moden dan kontemporari di Taman Shah Bandar 2, Klang bandar Diraja. Dibina di atas tanah berkeluasan 2.39 ekar. Rumah teres 2 tingkat ini terletak di lokasi strategik yang mempunyai akses mudah ke jalinan jalan raya utama dan lebuhraya. Kediaman ini terletak berhampiran dengan bandar ba​ndar utama seperti Klang dan Shah Alam serta berdekatan dengan kemudahan kemudahan awam yang telah pun tersedia.
Pegangan Hak Milik Kekal Rezab Melayu
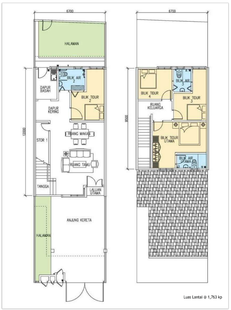
JENIS A
Rumah Teres 2 Tingkat

➤ 12 Unit
➤ Saiz - 22' x 80'-89'
➤ Luas Lantai - 1,763 kp
➤ 4 Bilik Tidur & 3 Bilik Air
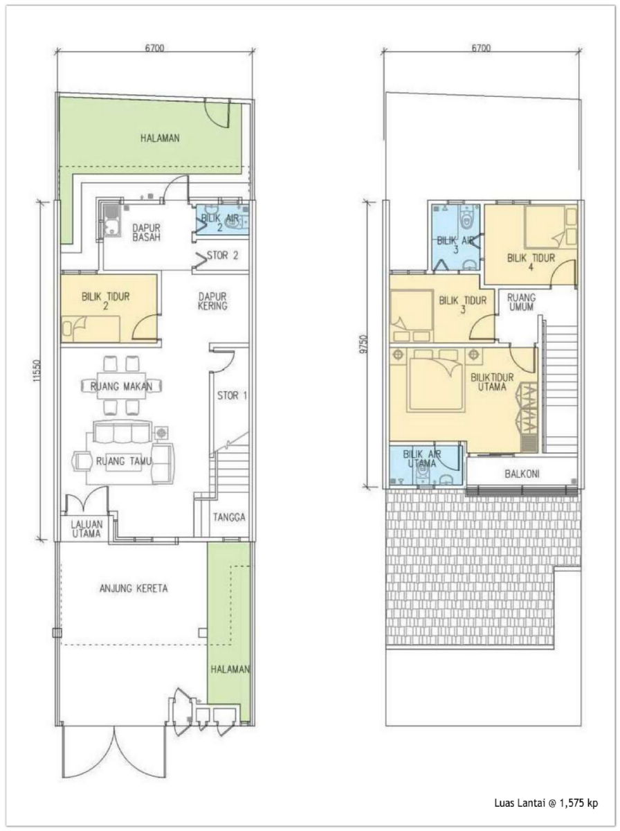
JENIS B
Rumah Teres 2 Tingkat

➤ 12 Unit
➤ Saiz - 22' x 70'-79'
➤ Luas Lantai - 1,575 kp
➤ 4 Bilik Tidur & 3 Bilik Air
HUBUNGI KAMI

Koperasi Serbaguna Anak-anak Selangor Berhad
Lot A-G-03 Plaza Kelana Jaya, Jalan SS 7/13B, 47301 Petaling Jaya, Selangor Darul Ehsan.

Tel: +603-7873 0181/7873 1181
Emel: mail@kosas.com.my
© Hak Cipta Terpelihara © KOSAS 2025